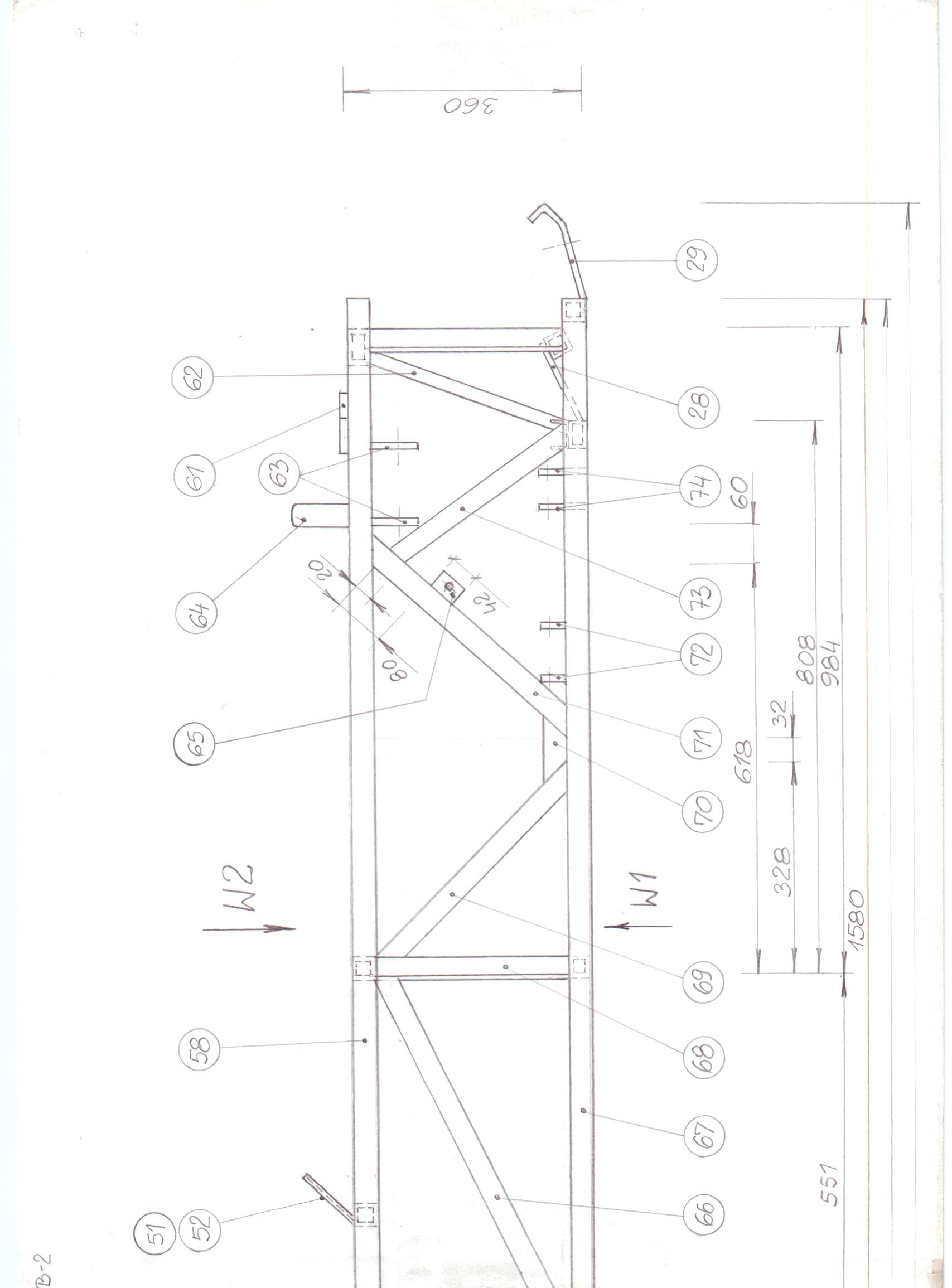
Na, pagrindinis siu auto saugumas paremtas tuom, kad nekalsi nosim tiesiai kazkur, o nuslysi sonu, nuroves rataRenatas wrote:Cia truputi papaisiau kaip kaip turetu buti remo sonai. Rodikles tai tarkim veikenti jega ta vieta. (jei ka suklisiu prasau pataisiti) Tai vat atkreipus demesi i toke konstrukcija pamatisim jog beveik visi vamzdziai dirba ant tempimo kaip ir priklauso. Vamzdis negali dirbti ant gniuzdimo. Kiek imanoma reike zeti , kad jis dirbtu ant tempimo. Dabar imtume ir pati pirma skersinuka nuvestume ne is virsaus o is apacios ir fsio jis jau gniuzdomas o tai negerai. Nemoku viska isreiksti rastugyvai reike paroditi kaip reike uzdarineti kampus ir t.t Cia esminis dalikas . Nu cia teorija is lektuveliu gamibos , bet manau ir cia ji pritaikoma. Jei turi paprasta breziniu varijenta , galeciau si bei ta patarti. Nesu indzineris tik praktikos sektiek turiu
Projektelis be pavadinimo :)
Re: Projektelis be pavadinimo :)

Vyras turi turet hobi. Jei vyras neturi hobio, jis vaiksto pas svetimas moteris
Skype - shropna
Re: Projektelis be pavadinimo :)
Na tai suprantu , bet juk turi buti ir surisimas , kad ta sona nesustumtu. Nereike ir smugio remas ir taip dirba be smugiu.
Re: Projektelis be pavadinimo :)
Bet koks trikampis yra surisimas. Tiesa, bent jau maniskiam, yra prieki kazkur 20 cm zona, surista gan dideliais kampais, bet pats remas turi "luzimo" linija ties variklio tvirtinimo taskais, kad variklis su deze "nueitu" po apacia.....

Vyras turi turet hobi. Jei vyras neturi hobio, jis vaiksto pas svetimas moteris
Skype - shropna
Re: Projektelis be pavadinimo :)
nors paziurejus f1 priekine pakaba tai gal ir panasu


Photo archive https://goo.gl/photos/HUEjNpjQ3PwJio9G9
https://www.facebook.com/Fregis0/
Niekada nebijok daryti to ko nemoki, atmink: Nojaus arką pastatė mėgėjas, o Titaniką - profesionalai.
https://www.facebook.com/Fregis0/
Niekada nebijok daryti to ko nemoki, atmink: Nojaus arką pastatė mėgėjas, o Titaniką - profesionalai.